GROUPE DE SURPRESSION 200L TRI
Code 980168
Livré avec coffret manque d'eau
Vessie alimentaire interchangeable en caoutchouc EPDM
Séparation totale entre l'eau et l'air
GROUPE DE SURPRESSION 200L TRI
COFFRET MANQUE D'EAU 1,3KW
Réf. 980168
Identifiants incorrects
Connectez-vous pour connaître votre prix
Vous n'avez pas de compte ?
Créez un compte distributeur
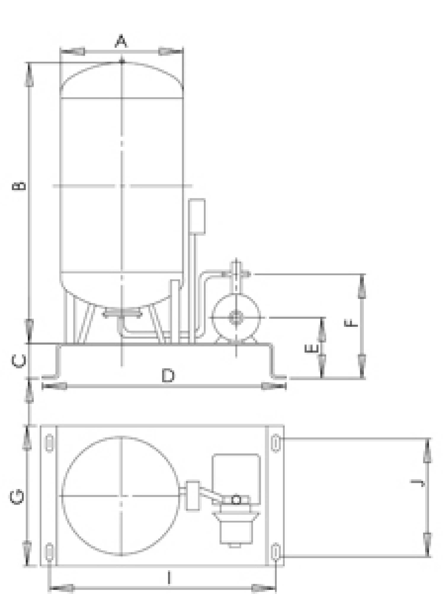
Tableau technique
Ampérage :
3 A
Pression de service :
10 bar
Pression max :
10 bar
Tension :
380 V
DNA :
1''1/4
DNR :
1''
Pompe RENSON utilisée :
104997
Débit max :
170 L/min
Capacité :
200 L
Moteur requis :
1 kW
Réservoir à membrane 10 bar CE 5 :
200 L
Pompe :
Monocellulaire inox
Documents relatifs au produit
Avantages produits
A quoi ça sert ?
Permet l’alimentation automatique en eaux sous pression d’un bâtiment entre 2 bars et 4 bars
Permet de maintenir une certaine réserve d’eau sous pression sans enclencher la pompe intempestivement
Pour un usage intensif
Avantages :
Avantages :
Livré avec coffret manque d'eau
Séparation totale entre l'eau et l'air
Séparation totale entre l’eau et les parties métalliques du réservoir
Vessie certifiée pour l’usage alimentaire
Fabriqué en France, dans notre usine du nord de la France
Cadre d'utilisation :
Cadre d'utilisation :
Température de l’eau max : 40°C
Description technique
Construction :
- 1 châssis en acier peint
- Réservoir 200 L
- 1 pompe multicellulaire triphasée 104997
- 1 réservoir à vessie 200L
- 1 coffret manque d'eau
- 1 contacteur manométrique + 1 manomètre
- 1 ensemble vanne + raccords
- 1 châssis en acier peint
- Réservoir 200 L
- 1 pompe multicellulaire triphasée 104997
- 1 réservoir à vessie 200L
- 1 coffret manque d'eau
- 1 contacteur manométrique + 1 manomètre
- 1 ensemble vanne + raccords
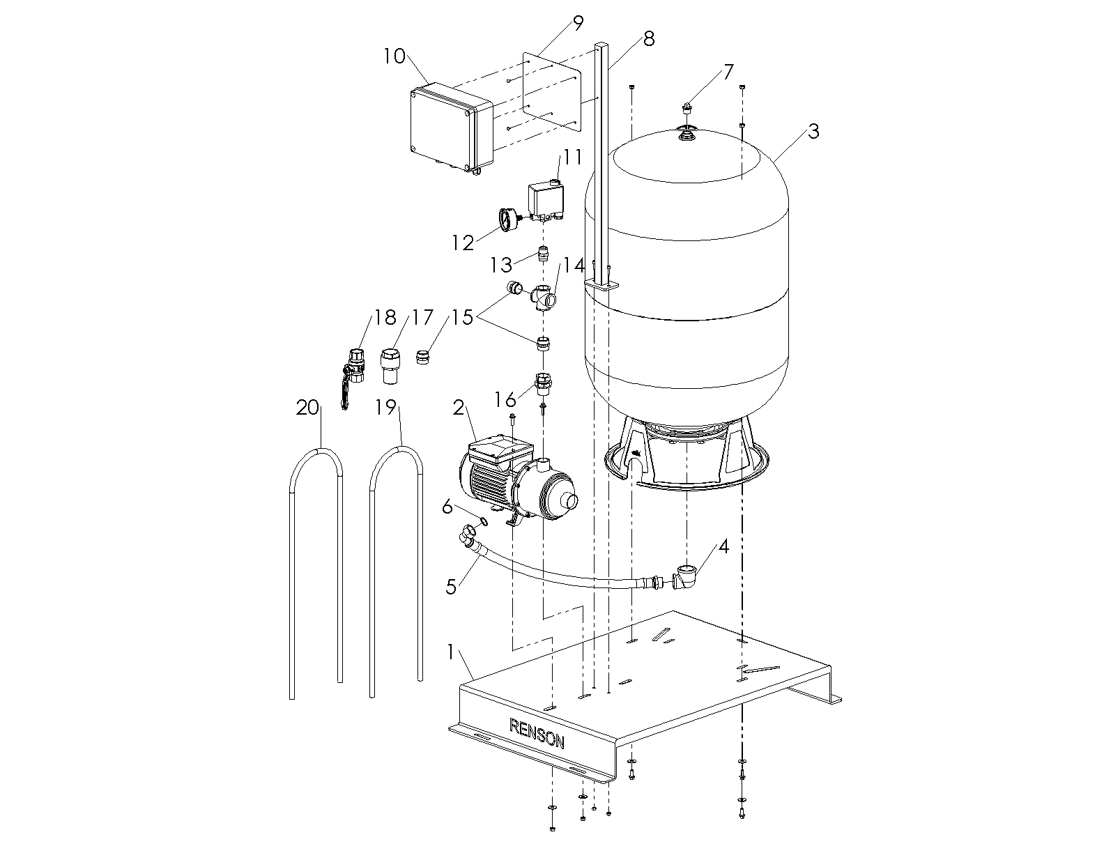
Vues éclatées
Repère
Code
Stock
Libellé
01
En stock
CHASSIS STATION SURPRESSION POUR 100 ET 200 LITRES
02
En stock
POMPE TRI HORIZONTALE 1,5KW MULTICELLULAIRE - ULT4
03
En stock
RESERVOIR A VESSIE VERTICAL 200L PRESSION MAX 10BARS
04
En stock
COUDE 90° REDUIT GALVA N°90R FF 1''1/4 x 1''
05
En stock
FLEXIBLE TRESSE DROIT 800MM MF 1''
06
En stock
JOINT FIBRE 28x22x1,5
07
En stock
BOUCHON GALVA N°290 MALE 1/2''
08
En stock
PIED BOITIER STATION SURPRESSI
09
En stock
PLAQUE SUPPORT BOITIER SURPRES
10
En rupture
COFFRET MANQUE EAU 12A EQUIP 1 A 3 ELECTRODE POSSIBLE
11
En stock
PRESSOSTAT 20A 1 - 6 BARS FEMELLE 1/2''
12
En stock
MANOMETRE HUILE DORSAL 0-6 BARS MALE 1/4''
13
En stock
MAMELON REDUIT LAITON 245L MM 1'' x 1/2''
14
En stock
CROIX 90° LAITON 180L FFFF 1''
15
En stock
MAMELON LAITON MM 1''
16
En stock
UNION RODAGE CONIQUE LAITON N°341 MF 1''
17
En stock
CREPINE CLAPET LAITON 1''1/4 AVEC CREPINE INOX
18
En stock
VANNE A BOISSEAU SPHERIQUE PN25 FF 1''
19
En stock
METRE DE CABLE ELECTRIQUE HO7RNF 3G1,5
20
En stock
METRE DE CABLE ELECTRIQUE HO7RNF 4G1,5
01
En stock
159679
CHASSIS STATION SURPRESSION POUR 100 ET 200 LITRES
02
En stock
825197
POMPE TRI HORIZONTALE 1,5KW MULTICELLULAIRE - ULT4
03
En stock
980298
RESERVOIR A VESSIE VERTICAL 200L PRESSION MAX 10BARS
04
En stock
101218
COUDE 90° REDUIT GALVA N°90R FF 1''1/4 x 1''
05
En stock
110156
FLEXIBLE TRESSE DROIT 800MM MF 1''
06
En stock
137241
JOINT FIBRE 28x22x1,5
07
En stock
101096
BOUCHON GALVA N°290 MALE 1/2''
08
En stock
159677
PIED BOITIER STATION SURPRESSI
09
En stock
159678
PLAQUE SUPPORT BOITIER SURPRES
10
En rupture
104412
COFFRET MANQUE EAU 12A EQUIP 1 A 3 ELECTRODE POSSIBLE
11
En stock
369060
PRESSOSTAT 20A 1 - 6 BARS FEMELLE 1/2''
12
En stock
374995
MANOMETRE HUILE DORSAL 0-6 BARS MALE 1/4''
13
En stock
110249
MAMELON REDUIT LAITON 245L MM 1'' x 1/2''
14
En stock
110271
CROIX 90° LAITON 180L FFFF 1''
15
En stock
369263
MAMELON LAITON MM 1''
16
En stock
102100
UNION RODAGE CONIQUE LAITON N°341 MF 1''
17
En stock
141073
CREPINE CLAPET LAITON 1''1/4 AVEC CREPINE INOX
18
En stock
110207
VANNE A BOISSEAU SPHERIQUE PN25 FF 1''
19
En stock
101987
METRE DE CABLE ELECTRIQUE HO7RNF 3G1,5
20
En stock
101984
METRE DE CABLE ELECTRIQUE HO7RNF 4G1,5